(编号:242684) 西湖转塘周浦正泰木业厂房/仓储出租
|
|||||
| 发布时间: | 2022-10-01 14:35:29 | 房源状态: | 出租中 |
|
|
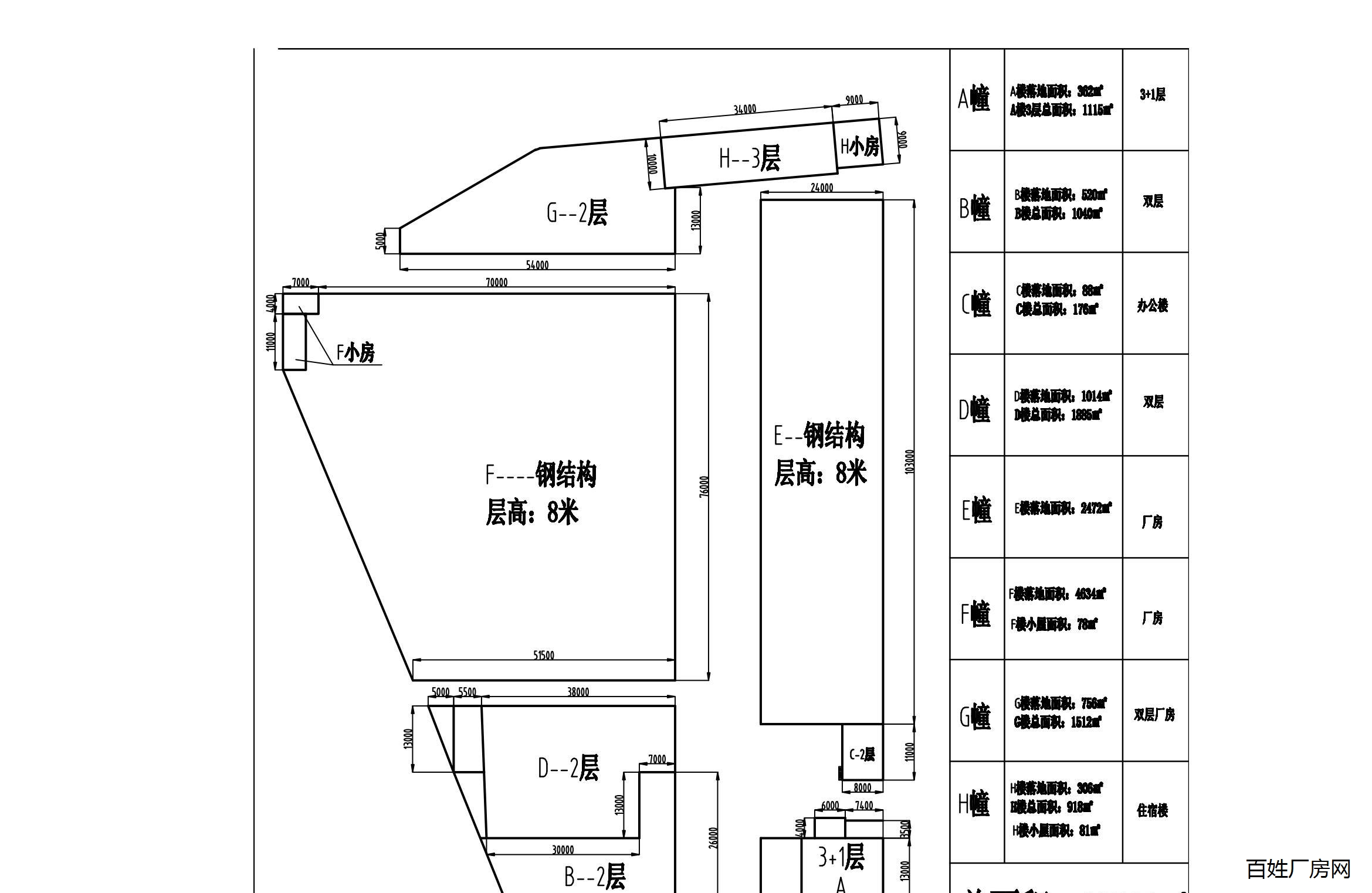
| 所在区域: | 杭州 / 西湖 | 建筑结构: | 钢架结构 | ||
| 厂房面积: | 13911 ㎡ | 车辆出入: | 大型车辆出入 | ||
| 出租价格: | 0 面议 | 配电容量: | 按需配置 KVA | ||
| 办公面积: | ㎡ | 可否分租: | 可以 | ||
| 空地面积: | ㎡ | 是否独院: | 是 | ||
| 所在楼层: | 1层 层 层高:8米 | 有无货梯: | 无 | ||
| 具体位置: | 浙江-杭州市-西湖-转塘周浦线周浦小学东北侧 | ||||


浙公网安备 33011002015824号
服务热线:13093751618 服务时间:8:30 - 21:30